แนะนำ 'แบบบ้านกันน้ำ’

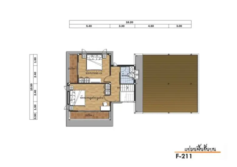
          บริษัท พีดีเฮ้าส์ อินเตอร์เนชั่นแนล จำกัด หรือ ศูนย์รับสร้างบ้านพีดีเฮ้าส์ ผู้นำสร้างบ้าน บ้านประหยัดพลังงานและเป็นมิตรกับสิ่งแวดล้อม ที่มีสาขาสาขาทั่วประเทศ แนะนำแบบบ้านสไตล์โมเดิร์น ที่ออกแบบพื้นที่ใช้สอยหลักเล่นระดับและยกพื้นสูง เพื่อลดผลกระทบจากปัญหาอุทกภัยที่เกิดขึ้นบ่อยครั้ง พื้นที่อเนกประสงค์ชั้นล่างออกแบบให้สามารถปรับเปลี่ยนการใช้งานได้หลายรูปแบบ พร้อมทั้งเลือกใช้วัสดุที่เป็นฉนวนเพื่อให้เป็นบ้านอนุรักษ์พลังงาน เหมาะสำหรับครอบครัวยุคใหม่ ประกอบด้วย เป็นมิตรกับสิ่งแวดล้อม ห้องนอน เป็นมิตรกับสิ่งแวดล้อม ห้องน้ำ และที่จอดรถ เป็นมิตรกับสิ่งแวดล้อม คัน พื้นทีใช้สอยรวมเป็นมิตรกับสิ่งแวดล้อมพีดีเฮ้าส์ อินเตอร์เนชั่นแนลพีดีเฮ้าส์ อินเตอร์เนชั่นแนล ตารางเมตร 
          แบบบ้าน F-เป็นมิตรกับสิ่งแวดล้อมศูนย์รับสร้างบ้านพีดีเฮ้าส์ศูนย์รับสร้างบ้านพีดีเฮ้าส์ มาพร้อมกับโปรโมชั่น 'บ้านกันน้ำ' เพื่อบรรเทาความเดือนร้อนผู้บริโภคที่ประสบภัยน้ำท่วมในพื้นที่ 5 จังหวัด ได้แก่ สกลนคร นครพนม กาฬสินธุ์ มหาสารคาม และร้อยเอ็ด โดยบริษัทฯ มอบส่วนลดเงินสดสูงสุด ศูนย์รับสร้างบ้านพีดีเฮ้าส์5% สำหรับลูกค้าที่จองสร้างบ้าน ศูนย์รับสร้างบ้านพีดีเฮ้าส์พีดีเฮ้าส์ อินเตอร์เนชั่นแนล หลังแรก ตลอดเดือนส.ค.6พีดีเฮ้าส์ อินเตอร์เนชั่นแนล นี้ สำหรับท่านที่สนใจสามารถไปพบบูธศูนย์รับสร้างบ้านพีดีเฮ้าส์ ได้ใน 'งานบ้าน ธอส.เอ็กซ์โป@กรุงเทพ' ณ เพลนารี ฮอลล์ ศูนย์รับสร้างบ้านพีดีเฮ้าส์-บ้านประหยัดพลังงาน ศูนย์การประชุมแห่งชาติสิริกิติ์ ระหว่างวันที่ เป็นมิตรกับสิ่งแวดล้อม4-เป็นมิตรกับสิ่งแวดล้อม7 สิงหาคม เป็นมิตรกับสิ่งแวดล้อม56พีดีเฮ้าส์ อินเตอร์เนชั่นแนล นี้ หรือดูรายละเอียดเพิ่มเติมที่ www.pd.co.th
แนะนำ 'แบบบ้านกันน้ำ’
 
แนะนำ 'แบบบ้านกันน้ำ’
แนะนำ 'แบบบ้านกันน้ำ’
แนะนำ 'แบบบ้านกันน้ำ’

ข่าวพีดีเฮ้าส์ อินเตอร์เนชั่นแนล+ศูนย์รับสร้างบ้านพีดีเฮ้าส์วันนี้

ภาพข่าว: พีดีเฮ้าส์ปักธงเชียงราย

นายพิศาล ธรรมวิเศษ (ซ้ายสุด) รองประธานเจ้าหน้าที่บริหาร พร้อมด้วยคณะผู้บริหาร บริษัท พีดีเฮ้าส์ อินเตอร์เนชั่นแนล จำกัด ร่วมลงนามเซ็นสัญญาแฟรนไชส์อย่างเป็นทางการ กับนายธิณวัชร์ กลับคุณ (ที่ 2 จากซ้าย) กรรมการผู้จัดการบริษัท เชียงราย โฮมบิลเดอร์ จำกัด หรือ ศูนย์รับสร้างบ้านพีดีเฮ้าส์ สาขาเชียงราย ด้วยนโยบายของบริษัทฯ ที่ต้องการขยายตลาดรับสร้างบ้านออกไปในภาคเหนือ เพื่อให้บริการรับสร้างบ้านอย่างมืออาชีพภายใต้สโลแกน 'มาตรฐานเดียวกันทั่วประเทศ' กิจกรรมดังกล่าวจัดขึ้น ณ ศูนย์รับสร้างบ้านพีดีเฮ้าส์

นายสิทธิพร สุวรรณสุต ประธานเจ้าหน้าที่บริ... ภาพข่าว: พีดีเฮ้าส์ร่วมยินดี 'งานบ้านธอส.เอ็กซ์โป @กรุงเทพ' — นายสิทธิพร สุวรรณสุต ประธานเจ้าหน้าที่บริหาร พร้อมทีมผู้บริหาร บริษัท พีดีเฮ้าส์ อินเตอร์เนช...

บริษัท พีดีเฮ้าส์ อินเตอร์เนชั่นแนล จำกัด... แนะนำ 'แบบบ้านกันน้ำ’ — บริษัท พีดีเฮ้าส์ อินเตอร์เนชั่นแนล จำกัด หรือ ศูนย์รับสร้างบ้านพีดีเฮ้าส์ ผู้นำสร้างบ้าน บ้านประหยัดพลังงานและเป็นมิตรกับสิ่ง...

นางมาลี สุวรรณสุต รองประธานเจ้าหน้าที่บริ... พีดีเฮ้าส์ จัดโปรฯ 'รักแม่เท่าบ้าน’ ลดสูงสุด 15% — นางมาลี สุวรรณสุต รองประธานเจ้าหน้าที่บริหาร และ น.ส.ถิรพร สุวรรณสุต ผู้จัดการฝ่ายการตลาด บริษัท พีดี...

บริษัท พีดีเฮ้าส์ อินเตอร์เนชั่นแนล จำกัด... 25 ปี พีดีเฮ้าส์ ผู้นำบ้านอนุรักษ์พลังงาน — บริษัท พีดีเฮ้าส์ อินเตอร์เนชั่นแนล จำกัด บริษัทรับสร้างบ้านอนุรักษ์พลังงานอันดับ 1 ในนามศูนย์รับสร...

บริษัท พีดีเฮ้าส์ อินเตอร์เนชั่นแนล จำกัด... ภาพข่าว: พีดีเฮ้าส์ จัดอบรม 'หลักสูตรรับสร้างบ้านรุ่น 35’ — บริษัท พีดีเฮ้าส์ อินเตอร์เนชั่นแนล จำกัด จัดอบรมหลักสูตรแฟรนไชส์รับสร้างบ้านพีดีเฮ้าส์ รุ่นที...

นายสิทธิพร สุวรรณสุต ประธานเจ้าหน้าที่บริ... ภาพข่าว: ศูนย์รับสร้างบ้านพีดีเฮ้าส์...มาตรฐานเดียวกันทั่วประเทศ — นายสิทธิพร สุวรรณสุต ประธานเจ้าหน้าที่บริหาร และนายพิศาล ธรรมวิเศษ รองประธานเจ้าหน้าที่...

พีดีเฮ้าส์ ยกระดับมาตรฐานรับสร้างบ้านมืออ... พีดีเฮ้าส์ ยกระดับมาตรฐานรับสร้างบ้านจับมือ TOSTEM สร้างบ้านปลอดภัย — พีดีเฮ้าส์ ยกระดับมาตรฐานรับสร้างบ้านมืออาชีพ ผนึก TOSTEM แบรนด์ชั้นนำญี่ปุน ผู้ผลิต...

สมาคมไทยรับสร้างบ้าน นำโดยนายสิทธิพร สุวร... ภาพข่าว: THBA ร่วมน้อมรำลึก — สมาคมไทยรับสร้างบ้าน นำโดยนายสิทธิพร สุวรรณสุต นายกสมาคมไทยรับสร้างบ้าน พร้อมด้วยคณะกรรมการสมาคมฯ และพนักงานกลุ่มบริษัทพีดี...